245 Fifth Avenue

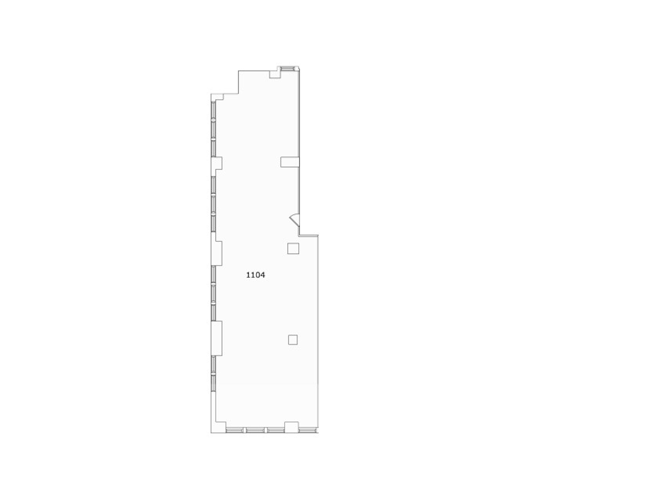
245 Fifth Avenue 1104

NoMad, Manhattan

Net Effective
*Net price advertised
Available
Immediately
a tall building
This built out, 5,190 square feet space is partially furnished and features polished concrete flooring, four conference rooms, a reception area a high-end pantry and an expansive open area with 30 workstations. Northern exposure allows for plenty of natural light.
a tall building

245 Fifth Avenue Leasing Center