West Gramercy

10 West 18th Street 3RD FLOOR

Flatiron, Manhattan

Net Effective
*Net price advertised
Available
Immediately
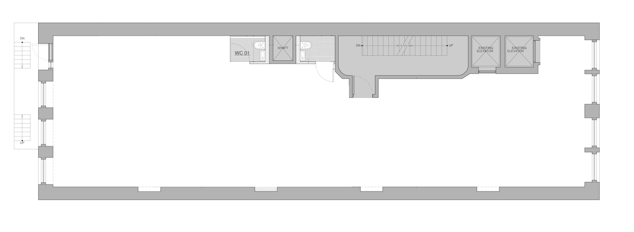
With extra-large windows, this bright open loft measures 3,000 square feet and features hardwood floors, 12’ ceilings, a large glass conference room and two restrooms.
a tall building

Just west of New York City’s iconic wedge-shaped Flatiron Building, this neighborhood unites the warmth of the village with the bustle of midtown. Featuring Madison Square Park to the north, the combination of residential, commercial and retail options along with trendy bars and restaurants make it a stomping ground for locals and tourists alike.

Conveniatly nestled between Nomad, Gramercy Park and Chelsea, this neighboorhood offers easy access to tansportation, shopping and nightlife.

West Gramercy Leasing Center